de +43(0)650 770 4715 Mo - Fr: 09:00 - 18:00 A-3512, Unterbergern 8/7
Kassenförderung möglich
Wir unterstützen Sie!
Wir beraten Sie persönlich!
In Österreich, Deutschland & Schweiz
Jetzt Anfragen

Lift Toilette CarePlus

Weil wir Menschen so weit wie möglich selbstständig bleiben wollen

Lift Toilette CarePlus

Die Lift Toilette CarePlus ist eine Erweiterung des Toilettenlifts Modell Care und bietet neben der stufenlosen Höhenverstellung und Barrierefreiheit einen zusätzlichen Neigungswinkel von 12 Grad.

Eignung für:

  • Personen mit Schwierigkeiten bei der Nutzung einer Standard-Toilette, v. a.
  • Rollstuhlfahrer
  • Bewegungsbeeinträchtige bis zur Behinderung

Einsatzbereiche:

  • Toilettenlift durch stufenlose Höhenverstellung (350 mm)
  • zusätzliche Individualisierung durch Neigungswinkel: -2° bis +10°
  • barrierefreie Toilettennutzung durch Stütz-Klapp-Griffe
  • komfortable Setz- und Aufstehhilfe

Steuerungsmöglichkeiten:

Die Lift Toilette CarePlus lässt sich in die gewünschte Sitzhöhe elektrisch und stufenlos von 400 mm auf 750 mm und um 12 Grad in der Neigung einstellen.

  • Wandschalter und/oder
  • im Griff integrierte Steuerungstastatur
  • auf Wunsch Tasten für Spülung und Alarm
  • auf Wunsch zusätzliche Fernsteuerung
  • auf Wunsch Infrarotsensor (in Wandschalter integriert für autom. Spülung)

Design & Integration:

Die Lift Toilette CarePlus lässt sich in jeden Sanitärraum integrieren:

  • Unterputzmontage bei Wand-WCs
  • geeignet für Standard-WCs mit oder ohne Bidets bzw. Dusch-WCs
  • hochwertige Materialien für einen eleganten, zeitlosen Look
  • einfache Reinigung und Reinigung durch glatte und nutzerfreundliche Oberflächen

Unterputzrahmen bestehend aus:

  • verzinkten Stahlprofilen
  • integriertes Spülkastensystem UP 320 Geberit
  • Betätigungsplatte (Farbe: Weiß)
    mit Start-Stop-System
  • Abfluss-Set
  • Elektroeinheit
  • Kunststoffabdeckung (Farbe: Weiß)
  • Wandschalter für Höhenverstellung
  • Multifunktionale, mitfahrende Stütz-Klapp-Griffe
  • Steuerungen im Griff integriert (hoch, runter,
    Neigung, auf Wunsch Spülung und Alarm)

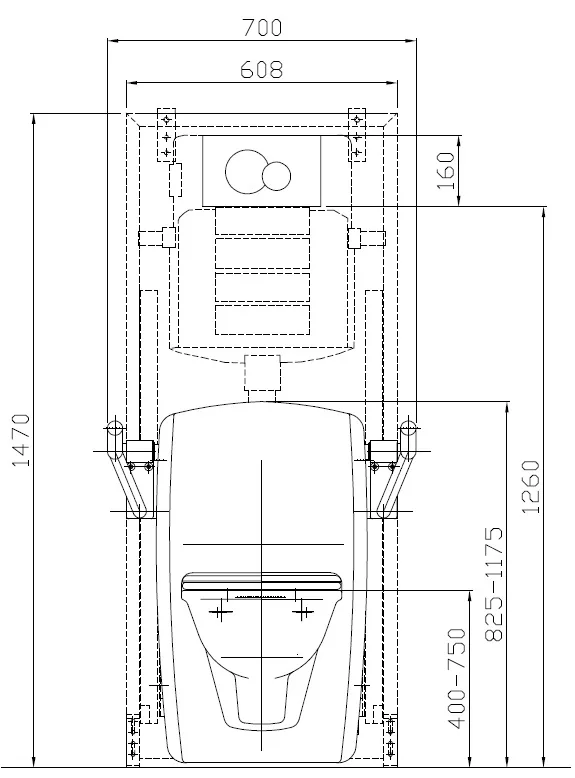
Technische Daten:

  • Maße: 1470 x 760 mm
  • Höhenverstellung: 400 – 750 mm
  • Neigungswinkel: -2° bis 10°
  • Wasserabfluss DN100
  • Stromanschluss 230V/50Hz 16A
  • Wasseranschluss G1/2“
  • Eckventile G3/8“
  • Antriebssteuerung 24V DC

Aufbaualternativen – Lift Toilette CarePlus

Die Lift Toilette CarePlus kann nach Wunsch konfiguriert werden. Für das Unterputzelement bieten wir verschiedene Griffe, Steuerungsalternativen sowie diverse Sitzflächen oder Toiletten-Schüsseln an.

Downloads